Saignelégier
950'000 CHF clés en main (taxes de raccordement en sus)
N° de Référence : combe
Description : maison familiale parcelle 1288
Surface habitable : env. 120 m2
Surface totale :
Nombre de pièces : 4.5
Nombre de chambres : 3
Nombre de salles de bain : 2 + WC séparé
Terrain : 543 m2
Chauffage : Pompe à chaleur avec panneaux photovoltaïques
Construction : madrier massif thermo-chauffé
Certificat énergétique : B/B/A
Commodités : Garage, conduit de cheminée, cuisine ouverte, dressing, jardin, terrasse, balcon, tranquillité
Proximité : Transports publics, centre, pistes de ski, commerces, écoles
Disponibilité : 1er avril 2026
Description
A vendre dès avril 2026 à Saignelégier, dans nouveau quartier résidentiel proche de toutes les commodités, maisons familiales modernes en madrier massif thermo-chauffé avec panneaux solaires photovoltaïques. Chauffage avec pompe à chaleur.
Parcelle 1288 :
- maison d'env. 120m2 avec 4.5pces, balcon, garage, terrasse, aménagements extérieurs, parcelle 543m2
Parcelles 1290, 1291 et 1292 : également disponibles.
Possibilité de visiter une maison déjà construite dans les Franches-Montagnes.
Voir ci-dessous les vidéos et la présentation *PDF.
Kontakt auf deutsch auch möglich.
Partager l'annonce
Emplacement
Photos, plans et vidéos : maison parcelle 1287
Vidéo rez-de-chaussée
Vidéo 1er étage
Photos
Photos
Nouveau paragraphe
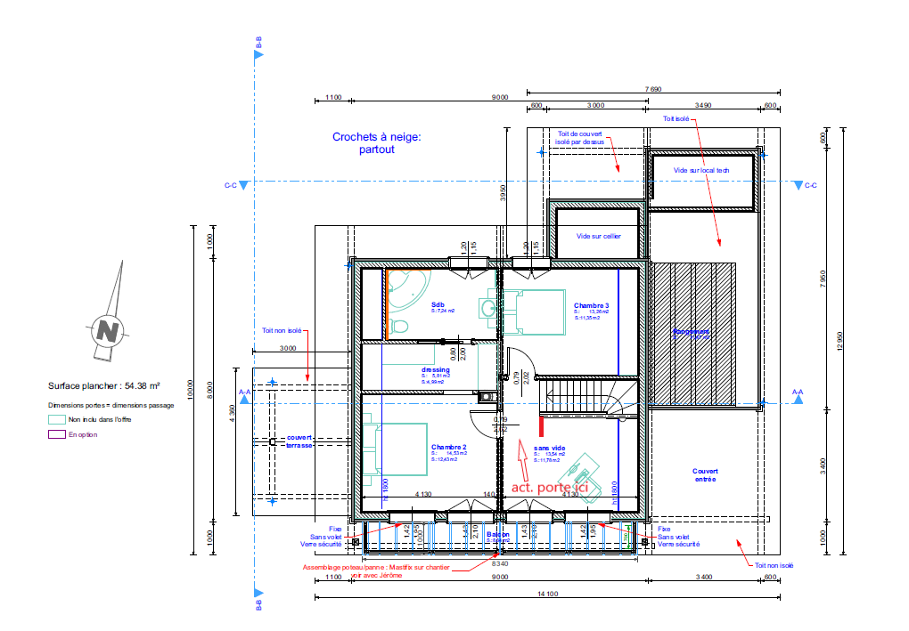
Plans
Photos, plans et vidéos : maison parcelle 1289
-> création d'une chambre supplémentaire au rez-de-chaussée avec salle de bain individuelle
-> création d'une grande chambre au 1er étage
Rez-de-chaussée
1er étage
Photos
Photos
Nouveau paragraphe
Plans
Vidéos : exemple même genre de maison déjà construite au Noirmont
Rez-de-chaussée
Exemple même genre de maison déjà construite au Noirmont
1er étage
Exemple même genre de maison déjà construite au Noirmont
Rez-de-chaussée
Exemple d'une maison plus grande de même construction
1er étage
Exemple d'une maison plus grande de même construction












































































